Erfahrungen & Bewertungen zu Cerberus Kaminhaus GmbH
+10 Jahre Erfahrung
Original Ersatzteile mit Qualitätssiegel
Geprüfter Onlineshop
+10 Jahre Erfahrung

Wodtke PE Einbaugerät air+ Fühler

nur 67,70 €
Inhalt: 1 Stück

inkl. MwSt. zzgl. Versandkosten

Lieferzeit 3-6 Wochen


  • Persönliche Fachberatung für alle Ihre Fragen
  • Original Ersatzteil in geprüfter Qualität
  • 14 Tage Geld zurück Garantie für Ihre Bestellung

Weitere Informationen zum Produkt

  • 01037240


Haben Sie Fragen zu diesem Artikel?
Gerne stehe ich Ihnen zur Verfügung und beantworte Ihre Fragen:
Niklas Suter
(040) 28 48 48 - 210
Formular Ersatzteilanfrage
Original Temperaturfühler für den Pelletofen Wodtke PE Einbaugerät air+ Wodtke PE... mehr
Produktinformationen "Wodtke PE Einbaugerät air+ Fühler"

Original Temperaturfühler für den Pelletofen Wodtke PE Einbaugerät air+

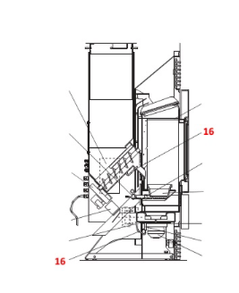
Wodtke PE Einbaugerät air+ Temperaturfühler Eckdaten:

  • Temperatursensor, Temperaturmesser
  • Länge 1,08 m
  • PT1000 Fühler
  • verwendbar als Temperaturfühler für Pelletrutsche (TP) oder Rauchgasgebläse (TR)
  • Position 16 in der Explosionszeichnung
Ersatzteilart: Temperaturfühler
Modell: PE Einbaugerät
Länge in cm: 108
Typ: air+
Weiterführende Links zu "Wodtke PE Einbaugerät air+ Fühler"
Zuletzt angesehen